|
Есть вопросы? Наши квалифицированные специалисты готовы проконсультировать вас. Пишите свои вопросы или отправляйте заявку на нашу почту: gt@gigaterm.ru |
Задать вопрос
|
Цена:
Цена по запросу
Нашли дешевле?
Самовывоз - бесплатно
Доставка - по тарифу ТК
Доставка - по тарифу ТК
Характеристики
Характеристики
—
| Наименование параметров | Значение параметра для счетчиков с диаметром условного прохода (Ду), мм | |||
| 50/15 | 80/20 | 100/20 | 150/40 | |
| Метрологический класс | B | |||
| Расход воды, м3/ч | ||||
| - минимальный расход воды qmin | 0,03 | 0,05 | 0,05 | 0,20 |
| - переходный расход воды qt | 0,12 | 0,20 | 0,20 | 0,80 |
| - номинальный (рабочий) расход воды qn | 45 | 100 | 150 | 250 |
| - максимальный расход воды qmax | 90 | 200 | 300 | 500 |
| Порог чувствительности (не более), м3/ч | 0,015 | 0,02 | 0,02 | 0,055 |
| Рабочий диапазон холодной воды, °С | от +5 до +30 | |||
| Максимальное давление воды, МПа | 1,6 | |||
| Минимальная цена деления, м3 | 0,0001 | 0,001 | ||
| Наибольшее значение роликового указателя, м3 | 999999+99999 | 9999999+999999 | ||
| Монтажная длина, мм | 280 | 370 | 370 | 500 |
| Цена импульса, литров/импульс | 100 | |||
Счетчик воды комбинированный СТВК-2 80/20 по цене производителя
- Счетчик серии СТВК-2 предназначен для измерения потребления питьевой и технической воды с максимальной температурой 30 градусов;
- СТВК-2 предназначен для систем с большой амплитудой расходов и разбросов давления;
- Может применяться в пожарных распределительных сетях и на объектах со значительным сезонным (суточным) колебанием расхода воды.
- Цена импульса: 100 литров/импульс + 10 литров/импульс для Ду 50, 65, 80, 100 и 1000 литров/импульс + 100 литров/импульс для Ду150
- При демонтаже многоструйного крыльчатого счётчика нет необходимости разбирать весь прибор.
Производитель: Декаст М (г. Калуга).
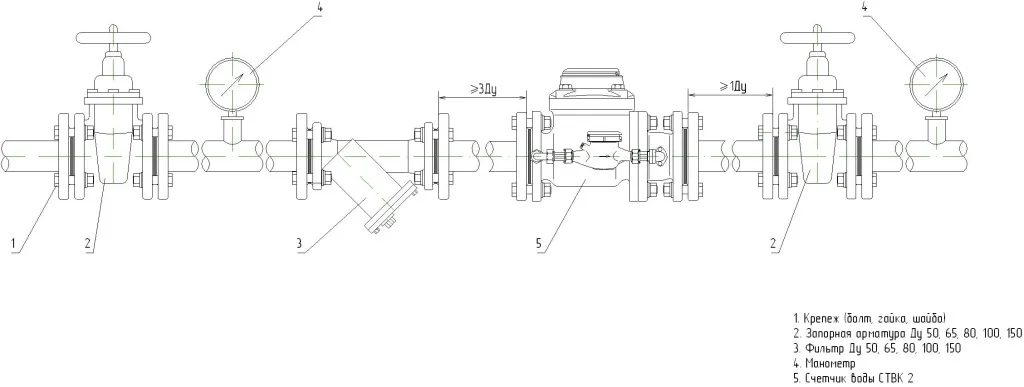
Монтажная схема счетчика СТВК 2

Модификации
- СТВК-2 конструктивно исполнен в двухкорпусном варианте, счетчики расположены параллельно. Серийно выпускается в следующих диаметрах условного перехода: 50/15, 80/20, 100/20, 150/40;
- Дополнительно может быть оснащен импульсными выходами, СТВК-2 ХХ/ХХ ДГ;
- Возможно нестандартное исполнение счетчика под заказ.
Достоинства
- Счетчик полностью соответствует ГОСТ Р 50193 и международным стандартам ISO 4064, ISO 7858.1.2.3
- Конструктивно в устройстве расположены два счетчика: турбинный счетчик для больших расходов, многоструйный крыльчатый счетчик для малых расходов. За счет этого достигается возможность точного измерения на объектах с широким диапазоном как малых, так и больших расходов воды.
- Возможность интегрировать счетчик в автоматизированную систему контроля и управления данными, счетные механизмы обоих счетчиков оснащены МИД-сенсорами.
Считывание показаний
Для определения общего объема воды, прошедшего через счётчик комбинированный СТВК, показания обоих индикаторных устройств суммируют.
Принцип работы
Конструктивно счётчики комбинированные СТВК состоят из двух счётчиков воды: турбинного (основного) и крыльчатого (вспомогательного), индикаторных устройств, воспринимающих число оборотов аксиальной турбинки основного счётчика, а также крыльчатки вспомогательного счётчика посредством механизма передачи вращения и переключающего устройства. Индикаторные устройства каждого из счётчиков показывают только ту часть общего измеренного объема, которая прошла через него.
Комплектация
- Счётчик холодной воды комбинированный;
- Паспорт;
- Комплект монтажных частей.
Документы
| Наименование параметров | Значение параметра для счетчиков с диаметром условного прохода (Ду), мм | |||
| 50/15 | 80/20 | 100/20 | 150/40 | |
| Метрологический класс | B | |||
| Расход воды, м3/ч | ||||
| - минимальный расход воды qmin | 0,03 | 0,05 | 0,05 | 0,20 |
| - переходный расход воды qt | 0,12 | 0,20 | 0,20 | 0,80 |
| - номинальный (рабочий) расход воды qn | 45 | 100 | 150 | 250 |
| - максимальный расход воды qmax | 90 | 200 | 300 | 500 |
| Порог чувствительности (не более), м3/ч | 0,015 | 0,02 | 0,02 | 0,055 |
| Рабочий диапазон холодной воды, °С | от +5 до +30 | |||
| Максимальное давление воды, МПа | 1,6 | |||
| Минимальная цена деления, м3 | 0,0001 | 0,001 | ||
| Наибольшее значение роликового указателя, м3 | 999999+99999 | 9999999+999999 | ||
| Монтажная длина, мм | 280 | 370 | 370 | 500 |
| Цена импульса, литров/импульс | 100 | |||
Отзывы
Оставить отзыв
Загрузка отзывов...

